I have been rethinking my loft conversion and may build on the other side of my roof, with one large dormer running down the side of the house. This will not look so pretty from the street, but it will be set back and hardly visible due to the closeness of the houses.
My roof is about 7.5 metre long, so my question is, how long can my dormer be? It seems that there is no answer, other than it cannot exceed 50 cubic metres of added roof space to remain under permitted development. This is huge.
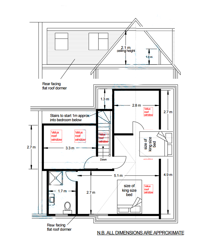
Here is a sketch up that shows both the original rear dormer and the new side dormer, with double bed positioned in each place.
The advantages of a side dormer is that I will have more depth to the bedroom, with more space for a super-king size bed. Also, the stairs will not need to be positioned so far back (towards the front) so I will not lose much space in the master bedroom. This will create a house with 6 bedrooms, two with en suite, plus a bathroom. Nice.
The downside is that it could only have frosted glass. This is not really a problem though, because I could put windows in the gables at front and back or clear glass Velux windows in the roof.
I would probably have the en suite at the front of the property though and have one attic room on the left side – even with dormer, this space will make a good sized office or single bedroom.
I have found some dormer ideas online. Not keen on a flat roof dormer, but the builder I spoke with this evening said that flat roof dormers can be built with rubber or fibreglass roofs which can extend their lifespan by 20 years.
I am not keen to have felt roofs, because they always break in the end (class story on MyBuilder here). This page says that epdm is the best material at the moment for flat roof dormers (answered in Jan 2013). What is EPDM, I hear you ask (OK, I just Googled it): “EPDM is an extremely durable synthetic rubber roofing membrane (ethylene propylene diene terpolymer) widely used in low-slope buildings”.
So, it is rubber. Looks like Permerroof UK is a supplier. Might have to check them out some time: “We are the UK Importers and Distributors for Firestone RubberCover. Firestone EPDM Rubber is imported direct from the factory in Prescott U.S.A, and distributed to a network of regional stockist outlets. Your prime source for EPDM rubber membranes.”
So, Firestone EPDM is an American product that is taking the world by storm, or so it seems.
In answer to my first question, how big can a dormer be? I guess the answer is, as large as a single piece of good quality flat roof material. Permaroof supply “PREMIUM Firestone EPDM Flat Roof Kit 7.5m x 3.5m“, so this means I could have a dormer the full length of the house.
Here is a photo of a “Continuous Shed Dormer”. This one has a pitched roof, but not sure I have the height for this.
Source: https://pro.homeadvisor.com/article.show.Design-Dormers-by-Design.13706.html
